Evid. číslo: A7842

VEŘEJNÁ DRAŽBA - soubor 8 budov (staveb) ve výrobně skladovacím areálu; podlahová plocha 5.239 m2, část Semtín, Pardubice

Aukce Veřejná dražba - elektronická
Vyřizuje Petr Stejskal
Email stejskal@gaute.cz
Telefon +420739003015
Začátek 15.04.2026 13:00:00
Doba do zahájení Dražba již začala
Aktuální čas 20.05.2026 05:06:12
Konec 15.04.2026 14:00:00
Zbývá Ukončeno
Min. příhoz 10 000 Kč
Nejnižší podání (Vyvolávací cena) 20 230 000 Kč
Poslední nabídka -----------------
Dražební jistota 1 000 000 Kč
Upozornění Toto není výběrové řízení ale veřejná dražba dle zák. 250/2023 Sb. s anglickým způsobem licitace
Kategorie energetické náročnosti G
Aukce Veřejná dražba - elektronická
Vyřizuje Petr Stejskal
Email stejskal@gaute.cz
Telefon +420739003015
Začátek 15.04.2026 13:00:00
Doba do zahájení Dražba již začala
Konec 15.04.2026 14:00:00
Zbývá Ukončeno
Min. příhoz 10 000 Kč
Nejnižší podání (Vyvolávací cena) 20 230 000 Kč
Poslední nabídka -----------------
Dražební jistota 1 000 000 Kč
Upozornění Toto není výběrové řízení ale veřejná dražba dle zák. 250/2023 Sb. s anglickým způsobem licitace
Kategorie energetické náročnosti G

Historie nabídek

Dražebník: 15.04.2026 14:00:00,00 Veřejná dražba A7842 ukončena. Nebyla podána žádná nabídka.

Dražebník: 15.04.2026 13:00:00,42 Vážení účastníci veřejné dražby, tato veřejná dražba č. A7842, byla zahájena. Vyvolávací cena činí: 20 230 000 Kč. Anglický způsob licitace. Označení a popis předmětu veřejné dražby, jeho stavu, příslušenství, práv s předmětem veřejné dražby spojených a závad na něm váznoucích a informaci o tom, zda je předmět veřejné dražby kulturní památkou, naleznete v dražební vyhlášce zveřejněné na této stránce. Můžete činit nabídky.

Popis

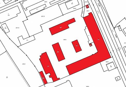
VEŘEJNÁ DRAŽBA předmětem dražby je soubor 8 budov (staveb) ve výrobně skladovacím areálu; podlahová plocha 5239 m2, část Semtín, Pardubice 

Budovy (stavby) jsou situovány v areálu průmyslové zóny, kde dominantní část tvoří areál společnosti Synthesia, a.s. Stavby jsou umístěny na pozemcích ve vlastnictví společnosti Synthesia, a.s. a tvoří relativně samostatný soubor uvnitř průmyslové zóny, který ale není od okolních staveb v areálu nijak oddělen. Lokalita se nachází v jihozápadní části průmyslové zóny, nedaleko od oblouku komunikace č. 211, která v této části vytváří hranici průmyslové zóny. Komunikace je vedena z Pardubic severozápadním směrem do města Lázně Bohdaneč a následně do Chlumce nad Cidlinou.

označení budovy

označení podlaží

podlahová plocha podlaží (m2)

podlahová plocha celkem (m2)

 
 

Admin. budova M15/1

Budova M15/1 - I. NP

449,6

887,6

 

Budova M15/1 - II. NP

438

 

Hala M15

Hala M15 - I. NP

2 635,44

2 898,74

 

Hala M15 - vestavba

263,3

 

Hala M15/3

Hala M15/3 - I. NP

683,19

683,19

 

Hala M15/10

Hala M15/10 - I. NP

360,24

360,24

 

Hala M15/8

Hala M15/8 - I. NP

207,44

290,42

 

Hala M15/8 - vestavba

82,98

 

Hala M15/5

Hala M15/5 - I. NP

119,2

119,2

 

 

 

CELKEM

5239

 

Pozn. jako příslušenství jsou považovány přístřešky (stavby) na pozemcích st. 947 o výměře 24 m2 a pozemku st. 955 o výměře 17 m2.

Administrativní budova M15/1 č.p. 273 na pozemku st. 946

Admin. budova

plocha (m)

m2

konstrukční výška (m)

I.NP

33,08*12,95+14,98*6,90

531,75

3,30

II. NP

33,08*12,95+14,98*6,90

531,75

3,20

 

Zastavěná plocha celkem

1 063,50

 

Stavba je se zastavěnou plochou tvaru dvou na sebe navazujících obdélníků a je s dvěma nadzemními podlažími bez podsklepení. Střecha je sedlová s mírným sklonem.

Dispoziční řešení

Zúžená část budovy tvoří severovýchodní křídlo. Vstup do budovy je samostatný pro I. a pro II. NP,. V I. NP je hlavním komunikačním prostorem chodba v podélné ose stavby, z které je přístup do většiny místností v podlaží. V I. NP jsou umístěny sprchy, umývárny, šatny zaměstnanců a sociální zařízení. Schodiště do II. NP není z I. NP přístupné, vedle schodišťového prostoru je umístěna výměníková stanice. Vstup do II. NP je samostatný. Dispozice vychází z podobného uspořádání jako v I. NP, většina místností je přístupná z podélné chodby v ose stavby. V zúžené severovýchodní části stavby je umístěna zasedací místnost, druhá menší zasedací místnost se nachází u jihozápadního štítu. Veškeré ostatní místnosti jsou užívány jako kanceláře, které doplňují tři malé sklady, sociální zařízení pro muže a ženy a čajová kuchyně.

Hala M15 na pozemku st. 948

Hala M15

plocha (m)

m2

konstrukční výška (m)

I.NP

17,60*66,14+17,60*62,48+17,60*17,60+6,18*22,50+9,35*4,60+3,30*5,64

2 774,14

9,90

II. NP

17,60*17,60

309,76

3,00

 

Zastavěná plocha celkem

3 083,90

 

Hala je s jedním nadzemním podlažím bez podsklepení a se sedlovou střechou bez možnosti vestavby podkroví. Zastavěná plocha je tvaru písmene L s podobnou délkou obou křídel. Ve spodnici obou křídel se nachází vestavba s dvěma podlažími, sklady a místnostmi zázemí, obě křídla jsou s volnou dispozicí. Severozápadní křídlo bylo užíváno jako obrobna, jihozápadní křídlo bylo užíváno jako zámečna. Dále je pak napojena přízemní přístavba s jedním nadzemním podlažím bez podsklepení a s plochou střechou. V přístavbě jsou umístěny původní dílny a denní místnosti.

Hala M15/3 na pozemku st. 949

Hala M15/3

zastavěná plocha (m)

m2

konstrukční výška (m)

I.NP

8,90*40,78+8,90*13,50+4,10*5,55+7,15*21,15+7,15*7,32+3,30*2,95

719,14

9,30

Stavba je s jedním nadzemním podlažím bez podsklepení a se sedlovou střechou bez možnosti vestavby podkroví. Zastavěná plocha je obdélníková a tvoří ji dvě části s rozdílnou konstrukční výškou, k jihozápadnímu průčelí je připojena přístavba s jedním nadzemním podlažím a pultovou střechou, která se skládá ze dvou částí s rozdílnou konstrukční výškou. Vnitřní dispozice je volná.

Hala M15/10 na pozemku st. 951

Hala M15/10

zastavěná plocha (m)

m2

konstrukční výška (m)

I.NP

12,00*31,60

379,20

6,26

Stavba je s jedním nadzemním podlažím bez podsklepení a se sedlovou střechou bez možnosti vestavby podkroví, zastavěná plocha je obdélníková. Vnitřní dispozice je volná, u severovýchodní stěny je umístěna stavební buňka jako místnost zázemí.

Hala M15/8 na pozemku st. 953

Hala M15/8

zastavěná plocha (m)

m2

konstrukční výška (m)

I.NP

10,60*20,60

218,36

6,70

Stavba je s jedním nadzemním podlažím bez podsklepení a se sedlovou střechou bez možnosti vestavby podkroví, zastavěná plocha je obdélníková. Vnitřní dispozice je volná, v části půdorysu se nachází patrová vestavba na sloupech bez svislých dělících konstrukcí.

Hala M15/5 na pozemku st. 956

Hala M15/5

zastavěná plocha (m)

m2

konstrukční výška (m)

I.NP

5,60*23,65+1,05*20,75

154,23

4,70

Stavba je s jedním nadzemním podlažím bez podsklepení a se sedlovou střechou bez možnosti vestavby podkroví, zastavěná plocha je obdélníková. Vnitřní dispozice je členěna na dvě části, severozápadní část je volná s vjezdem ze štítu, jihovýchodní část tvoří samostatné místnosti vždy na celou šířku stavby, přístupné jednotlivě přes nízkou nakládací rampu, která se nachází podél části jihozápadního průčelí.

Příslušenství:

Jako příslušenství jsou považovány přístřešky na pozemcích st. 947 o výměře 24 m2 a pozemku st. 955 o výměře 17 m2.

Přístřešek na pozemku parcely č. st. 947 je zděný s obdélníkovou zastavěnou plochou 24 m2, jedním nadzemním podlažím a pultovou střechou, střešní krytina je z profilovaného plechu s povrchovou úpravou. Přístřešek na pozemku parcely č. st. 955 o výměře 17 m2 je v kovové konstrukci s opláštěním profilovaným plechem s povrchovou úpravou. Přístřešek byl užíván jako sklad odpadů, v současnosti jsou přístřešky stejně jako ostatní oceňované nadzemní objekty mimo provoz.

Detailnější informace k nemovitostem jsou uvedeny v přiloženém znaleckém posudku – A7842_Znalecký posudek.pdf

Předmět dražby:             
Předmětem veřejné dražby jsou věci nemovité se všemi součástmi a příslušenstvím, a to:

- stavba v části obce Semtín č.p. 273, výroba, stavba stojí na pozemku parc.č. St. 946, zastavěná plocha a nádvoří (LV 312),
- stavba bez čp/če, výroba, stavba stojí na pozemku parc.č. St. 947, zastavěná plocha a nádvoří (LV 312),
- stavba bez čp/če, výroba, stavba stojí na pozemku parc.č. St. 948, zastavěná plocha a nádvoří (LV 312),
- stavba bez čp/če, výroba, stavba stojí na pozemku parc.č. St. 949, zastavěná plocha a nádvoří (LV 312),
- stavba bez čp/če, výroba, stavba stojí na pozemku parc.č. St. 951, zastavěná plocha a nádvoří (LV 312),
- stavba bez čp/če, výroba, stavba stojí na pozemku parc.č. St. 953, zastavěná plocha a nádvoří (LV 312),
- stavba bez čp/če, výroba, stavba stojí na pozemku parc.č. St. 955, zastavěná plocha a nádvoří (LV 312),
- stavba bez čp/če, výroba, stavba stojí na pozemku parc.č. St. 956, zastavěná plocha a nádvoří (LV 312)

to vše zapsáno v katastru nemovitostí na listu vlastnictví č. 551 v katastrálním území Semtín, obec Pardubice, u Katastrálního úřadu pro Pardubický kraj, katastrální pracoviště Pardubice (veškeré shora uvedené nemovité věci se všemi součástmi a příslušenstvím dále jen jako „Předmět veřejné dražby“),

Znalecký posudek je uveřejněný mezi přílohami této veřejné dražby A7842.

K Předmětu veřejné dražby se váže nájemní vztah (Smlouva o nájmu pozemků), který je uzavřen na dobu určitou, a to do 31.12.2099. Výše ročního nájemného činí 100 EUR, plus úplata rovnající se dani z nemovitých věcí vztahující se k předmětu nájmu za příslušné zdaňovací období, plus úplata rovnající se dalším veřejnoprávním finančním povinnostem vztahujícím se k předmětu nájmu (tj. daní, odvodů, úhrad, poplatků apod.), ke kterým bude povinen v daném roce Pronajímatel. Výše uvedené nájemné bude zdaňováno zákonnou sazbou DPH.

Součástí Smlouvy o nájmu pozemků je také ujednání o budoucí kupní smlouvě, kdy Nájemce je oprávněn vyzvat Pronajímatele k uzavření kupní smlouvy na koupi všech pronajatých pozemků. Kupní cena za budoucí kupované pozemky je stanovena v částce 3.300 EUR za všechny budoucí kupované pozemky.
Výše uvedené ujednání o budoucí kupní smlouvě se týká následujících pozemků:
- pozemek parc. č. St. 946, o výměře 532 m2, na pozemku stojí stavba, budova s č.p. 273, stavba pro výrobu a skladování (LV 551)
- pozemek parc. č. St. 947, o výměře 24 m2, na pozemku stojí stavba, budova bez č.p./č.e., stavba pro výrobu a skladování (LV 551)
- pozemek parc. č. St. 948, o výměře 2787 m2, na pozemku stojí stavba, budova bez č.p./č.e., stavba pro výrobu a skladování (LV 551)
- pozemek parc. č. St. 949, o výměře 736 m2, na pozemku stojí stavba, budova bez č.p./č.e., stavba pro výrobu a skladování (LV 551)
- pozemek parc. č. St. 951, o výměře 379 m2, na pozemku stojí stavba, budova bez č.p./č.e., stavba po výrobu a skladování (LV 551)
- pozemek parc. č. St. 953, o výměře 218 m2, na pozemku stojí stavba, budova bez č.p./č.e., stavba pro výrobu a skladování (LV 551)
- pozemek parc. č. St. 955, o výměře 17 m2, na pozemku stojí stavba, budova bez č.p./č.e., stavba pro výrobu a skladování (LV 551)
- pozemek parc. č. St. 956, o výměře 157 m2, na pozemku stojí stavba, budova bez č.p./č.e., stavba pro výrobu a skladování (LV 551)
- pozemek parc. č. 288/56, o výměře 7869 m2, manipulační plocha, ostatní plocha
- pozemek parc. č. 288/57, o výměře 453 m2, manipulační plocha, ostatní plocha
- pozemek parc. č. 288/58, o výměře 69 m2, ostatní komunikace, ostatní plocha
- pozemek parc. č. 288/59, o výměře 88 m2, manipulační plocha, ostatní plocha
- pozemek parc. č. 253/8, o výměře 743 m2, manipulační plocha, ostatní plocha (LV 592)

to vše zapsáno v katastru nemovitostí na listu vlastnictví č. 312 v katastrálním území Semtín, obec Pardubice, u Katastrálního úřadu pro Pardubický kraj, katastrální pracoviště Pardubice.

Datum zahájení veřejné dražby: 15.4.2026
Čas zahájení veřejné dražby: 13:00 hod.     

Datum ukončení veřejné dražby: 15.4.2026              
Čas ukončení veřejné dražby: 14:00 hod.    
(automatické prodlužování o 3 min. v případě příhozu před stanoveným koncem dražby - viz. dražební vyhláška)

Vyvolávací cena: 20.230.000,- Kč (slovy: dvacet milionů dvě stě třicet tisíc korun českých)

Obvyklá cena předmětu veřejné dražby:  28.900.000,- Kč (slovy dvacet osm milionů devět set tisíc korun českých)

Tato obvyklá cena je cenou bez daně z přidané hodnoty. Tento odhad obvyklé ceny Předmětu veřejné dražby byl zajištěn na základě znaleckého posudku č. 005822/2025 ze dne 14.1.2025, který vyhotovil Ing. Ladislav Hovorka, znalec v oboru Ekonomika/Oceňování nemovitých věcí.

Výše dražební jistoty: 1.000.000,- Kč (slovy: jeden milion korun českých)

Minimální příhoz: 10.000,- Kč (slovy: deset tisíc korun českých)

Kontaktní osoba:
Petr Charvát, tel.: 739 602 406, mail: charvat@gaute.cz
Petr Stejskal, tel.: 739 003 015, mail: stejskal@gaute.cz


Ostatní skutečnosti týkající se předmětu veřejné dražby:      
Dle ust. § 167 odst. 4 zákona č. 182/2006 Sb., insolvenčního zákona, v platném znění, zpeněžením věci, práva nebo jiné majetkové hodnoty v insolvenčním řízení zaniká zajištění pohledávky zajištěného věřitele, a to i v případě, že nepodal přihlášku své pohledávky.

Dle ust. § 285 odst. 1 zákona č. 182/2006 Sb., insolvenčního zákona, v platném znění, zpeněžením majetkové podstaty zanikají v rozsahu, v němž se týkají zpeněženého majetku, účinky nařízení výkonu rozhodnutí nebo exekuce, účinky doručení vyrozumění o zahájení exekuce a účinky vydaných exekučních příkazů, jakož i ostatní závady váznoucí na zpeněžovaném majetku, včetně neuplatněných předkupních práv podle § 284 odst. 3 a 4 insolvenčního zákona a včetně závad zapsaných ve veřejném seznamu, není-li dále stanoveno jinak.

Podle § 285 odst. 2 a 3 zákona č. 182/2006 Sb., insolvenčního zákona, byla-li zpeněžena nemovitost, kterou dlužník používá k bydlení své rodiny, anebo byt ve vlastnictví dlužníka, je dlužník povinen je vyklidit. Neučiní-li tak dobrovolně, může se kupující domáhat vyklizení žalobou u soudu; nejde o incidenční spor. Při vyklizení přísluší dlužníku stejná bytová náhrada jako při výpovědi nájmu bytu dané nájemci pro hrubé porušení povinností vyplývajících z nájmu bytu.

Z výše uvedeného důvodu nemají výše uvedená zástavní práva ani omezení vlastnického práva z důvodů nařízených exekucí ani omezení vlastnického práva z titulu zapsání nemovitých věcí do majetkové podstaty dlužníka vliv na hodnotu předmětu dražby.

Podle ustanovení §295 odst. 1 IZ dlužník, osoby mu blízké a osoby, které s ním tvoří koncern, nesmí nabývat majetek náležející do majetkové podstaty.

 

Zobrazit celý popis

Prováděcí dokumentace a přílohy

Přehled dotazů

Nikdo zatím neučinil dotaz k aukci.

sledujte:
@GAUTEaukce
sledujte:
YouTube kanál
Sledujte:
GAUTEaukce